Kinder Gesundheitszentrum Laaerberg

Foyer I Anmeldung
Wartebereich
Stillzimmer
Gang I Wartebereiche
Infektionsordination
Gang I Wartebereiche
Durchsichten
Ordinationszugang
Ordination
Sozialraum
Lageplan
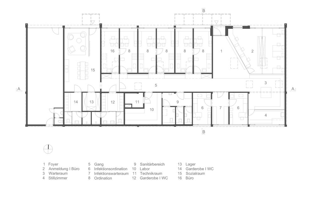
Grundriss
Schnitt A-A, B-B

Funktion: Kindergesundheitszentrum // Ort: Wien 1100 // Planung: 2023/24 // Ausführung: 2024
Grundstücksfläche: --- // Nutzfläche: 363 m² // Bebaute Fläche: --- // Status: ausgeführt

 

Fotos © Helmut K. Lackner

zurück